1962 8th Street

1962 8th Street, Atlanta, GA 30341

For Sale $799,000
MLS Number 10629968
3 Bedrooms
3 Bathrooms
1 Half Baths
Square Footage - 3,117 *estimated
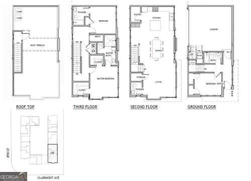
Turn off 8th Street and glide through the motor court into your private two car garage the beginning of something special Inside the first floor welcomes you with a bright modern foyer a full bath and a spacious bedroom that doubles beautifully as a home office complete with two closets for effortless organization Ascend to the open concept main level where luxury meets design The kitchen is a showstopper featuring one of a kind marble countertops two tone cabinetry a generous island for entertaining walk in pantry and a sleek dry bar with a built in wine fridge Fulgor stainless steel appliances anchor the space complemented by designer lighting and hardwood floors that flow seamlessly throughout The dining area sets the stage for your first dinner party while the elevated living room framed by corner windows offers striking views of the PDK runways below A discreet half bath adds an extra layer of convenience for guests and a large walk in storage closet near the staircase ensures everything you need has a stylish place to stay tucked away On the third level the indulgence continues with an ensuite secondary bedroom hallway laundry and an elegant primary suite boasting dual walk in closets with custom shelving and a spa like bath featuring a double vanity water closet and oversized walk in shower And just when you think you ve seen it all the rooftop terrace steals the show Stretching the full length of the home it is finished in lush turf with panoramic views of Stone Mountain and the runway lights of Peachtree DeKalb Airport Perfect for sunset cocktails or midnight conversations a gas line awaits your custom outdoor kitchen upgrade Beyond the home The Foxtrot offers an enviable lifestyle designed for those who move to their own rhythm Surrounded by six parks and the sprawling 33 acre Ashford Park Reserve outdoor adventures are steps away Minutes from Emory University top hospitals major highways and an array of dining and entertainment options you ll enjoy the best of urban living with the ease of a connected community Experience luxury living at its finest at The Foxtrot where prime location exceptional craftsmanship and unparalleled design converge to create a lifestyle unlike any other At The Globemaster every landing feels like a grand arrival
County
Dekalb
Neighborhood
The Foxtrot
Year Built
2025
Lot Size
1 to 2 Acres
Taxes
Unknown
High School
Chamblee
Middle School
Chamblee
Elementary School
Ashford Park
1962 8th Street - Map & Directions
view in Google Maps
GPS friendly Directly across the street from PDK airport entrance on Clarimont 8th St
Summary of 1962 8th Street
1962 8th Street is a 3,117 (*estimated) square foot home with 3 bedrooms and 3 bathrooms located in Atlanta GA, DeKalb County. This property is listed for sale at $799,000 and is currently active and accepting offers.
listed by real estate agent ryan carroll and courtesy of harry norman realtors
The Rains Team
call for more info
404-620-4571
Ask a Question
Add to Favorites
Send to a Friend
Schedule a Showing
Request More Info
Our Financing Partner
Dalton Carter
Lender
Lic. 1566538
Office:
Direct: 678-425-4140
AP Mortgage
340 Jesse Jewell Parkway
Suite 500A
Gainesville, GA 30501
Apply for a Loan
--->